物件番号
写真画像
所在地 価格
物件名
土地面積
建物面積
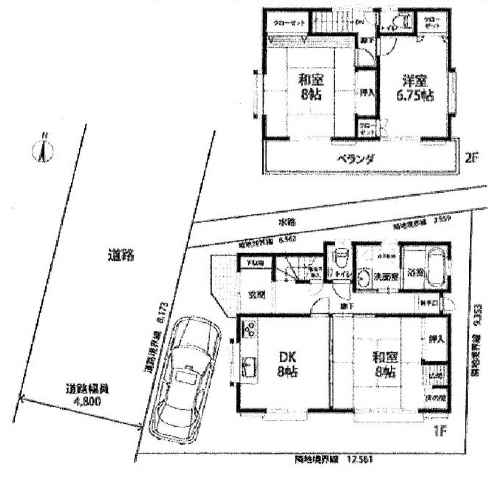
間取
構造
築年月
引渡時期
詳細 画像
Bt15005
 
茨木市耳原1丁目7-34 1,380万円
茨木市耳原1丁目
71.25m2
 
 
 
 
相談
御成約頂きました。  
☆静かな住宅街の建築条件なし売り土地です ☆土地面積約21.55坪 ☆お好みのハウスメーカーで建築して頂けます 

周辺施設
耳原小学校まで徒歩約4分 北中学校まで徒歩約12分 業務スーパーまで徒歩約7分 ジャパンまで徒歩約7分 アルプラザまで徒歩約14分
Bt14854
茨木市耳原3丁目5-11-21 1,630万円
茨木市耳原3丁目
75.09m2
 
 
 
 
新築
相談
間取あり間取あり写真あり写真あり
☆土地建物セット価格3380万円(建物:1650万円 82.62u) ☆静かな住宅街自由設計新築一戸建てです ☆お好みの間取りをご相談頂けます ☆2区画分譲です ※外構工事費用等別途必要です

周辺施設
耳原小学校まで徒歩約3分 耳原公園まで徒歩約7分 アルプラザまで徒歩約10分 北中学校まで徒歩約10分 ジャパンまで徒歩約3分 業務スーパーまで徒歩約3分
Bk14542
茨木市西安威1丁目16-38 1,780万円
茨木市西安威1丁目
100m2
114.06m2
4LDK
木造
H02/12
相談
間取あり写真あり写真あり
☆静かな住宅街の平成2年築の物件です ☆土地面積約30.25坪 ☆各居室収納+屋根裏収納付きで収納力たっぷり ☆近年各種リフォーム歴あり

周辺施設
安威小学校まで徒歩約13分 北中学校まで徒歩約4分 耳原公園まで徒歩約6分 アルプラザまで徒歩約12分 北大阪けいさつ病院まで徒歩約15分
Bm14453
茨木市豊原町9番 2,080万円
シャルム茨木
 
84.07m2
3LDK
鉄筋コンクリート造
S55/05
相談
間取あり写真あり写真あり
☆室内リフォーム済みの物件です ☆お手入れなしでご入居頂けます ☆地上10階建て6階部の南東角部屋です ☆陽当り・眺望・通風良好です ☆周辺商業施設も充実しております

周辺施設
北大阪けいさつ病院まで徒歩約9分 ☆セブンイレブン・トイザラス・アルプラザなど買い物は便利です!
Bk14845
茨木市西福井1丁目21-15 2,180万円
茨木市西福井1丁目
100.87m2
86.37m2
3DK
木造
H15/08
相談
間取あり写真あり写真あり
☆静かな住宅街の平成15年築の物件です ☆2025年9月にリフォーム済みの物件です ☆お手入れなしでご入居頂けます ☆3LDK+駐車場1台可

周辺施設
ファミリーマートまで徒歩約1分 アルプラザまで徒歩約10分 福井小学校まで徒歩約8分 北大阪ほうせんか病院まで徒歩約1分 北中学校まで徒歩約10分
Bm14874
茨木市豊原町9番 2,290万円
シャルム茨木
 
89.45m2
4LDK
鉄筋コンクリート造
S55/05
相談
間取あり写真あり写真あり
☆2025年11月に室内リフォーム済みの物件です ☆お手入れなしでご入居頂けます ☆地上10階建て7階部のお部屋です ☆広々4LDK ☆陽当り・眺望・通風良好です ☆周辺商業施設も充実しております

周辺施設
北大阪けいさつ病院まで徒歩約9分 ☆セブンイレブン・トイザラス・アルプラザなど買い物は便利です!
Bt14506
茨木市西安威1丁目8(B号地) 2,380万円
茨木市西安威1丁目
136.78m2
 
 
 
 
相談
間取あり写真あり写真あり
☆閑静な住宅街の建築条件なし売り土地です ☆全3区画分譲 ☆南向きで陽当たり良好です ☆建築条件がございませんのでお好みのハウスメーカーで建築して頂けます ☆現況更地ですので解体費用不要です

周辺施設
安威小学校まで徒歩約10分 北中学校まで徒歩約4分 食品館ちゃお安威店まで徒歩約5分 耳原公園まで徒歩約8分 北大阪けいさつ病院まで徒歩約17分
入荷後10日以内
Bt15029
茨木市上野町9-10付近(7号地) 2,510万円
茨木市上野町
83.67m2
 
 
 
 
相談
間取あり写真あり写真あり
☆静かな住宅街の全7区画分譲です ☆期間限定の建築条件なし売り土地です(予告なしに建売住宅に変更される可能性がございます ☆現況更地ですので解体費用不要です

周辺施設
アルプラザまで徒歩約11分 ローソンまで徒歩約4分 耳原公園まで徒歩約8分 耳原小学校まで徒歩約7分 北中学校まで徒歩約14分
Bt14514
茨木市西安威1丁目8(A号地) 2,580万円
茨木市西安威1丁目
150.02m2
 
 
 
 
相談
間取あり写真あり写真あり
☆閑静な住宅街の建築条件なし売り土地です ☆全3区画分譲 ☆南向きで陽当たり良好です ☆建築条件がございませんのでお好みのハウスメーカーで建築して頂けます ☆現況更地ですので解体費用不要です

周辺施設
安威小学校まで徒歩約10分 北中学校まで徒歩約4分 食品館ちゃお安威店まで徒歩約5分 耳原公園まで徒歩約8分 北大阪けいさつ病院まで徒歩約17分
Bk14947
茨木市西安威1丁目11-17 2,580万円
茨木市西安威1丁目
159.97m2
106.23m2
6LDK
木造
S43/06
相談
間取あり写真あり写真あり
☆閑静な住宅街の土地面積約48.39坪の物件です ☆6LDK ☆建て替え用地としてもご検討頂けます

周辺施設
ニッコーまで徒歩約5分 安威郵便局まで徒歩約6分 北中学校まで徒歩約4分 耳原公園まで徒歩約5分
入荷後10日以内
Bt15028
茨木市上野町9-10付近(6号地) 2,640万円
茨木市上野町
90m2
 
 
 
 
相談
間取あり写真あり写真あり
☆静かな住宅街の全7区画分譲です ☆期間限定の建築条件なし売り土地です(予告なしに建売住宅に変更される可能性がございます ☆現況更地ですので解体費用不要です

周辺施設
アルプラザまで徒歩約11分 ローソンまで徒歩約4分 耳原公園まで徒歩約8分 耳原小学校まで徒歩約7分 北中学校まで徒歩約14分
入荷後10日以内
Bt15023
茨木市上野町9-10付近(1号地) 2,700万円
茨木市上野町
88.58m2
 
 
 
 
相談
間取あり写真あり写真あり
☆静かな住宅街の全7区画分譲です ☆期間限定の建築条件なし売り土地です(予告なしに建売住宅に変更される可能性がございます ☆現況更地ですので解体費用不要です

周辺施設
アルプラザまで徒歩約11分 ローソンまで徒歩約4分 耳原公園まで徒歩約8分 耳原小学校まで徒歩約7分 北中学校まで徒歩約14分
Bk9268
 
茨木市西福井2丁目13-13 2,780万円
茨木市西福井2丁目
104.92m2
116.2m2
5LDK
木造
H24/07
相談
只今商談中の物件です。
 
☆閑静な住宅街の平成24年建築の物件です ☆4LDK+ロフト×2、小屋裏収納付き ☆収納力たっぷりです ☆安全安心のオール電化住宅 ☆長期優良住宅です

周辺施設
平和堂まで徒歩約10分 キリン堂まで徒歩約8分 福井郵便局まで徒歩約8分 警察病院まで徒歩約5分 サークルKまで徒歩約4分
Bt14510
茨木市西安威1丁目8(C号地) 2,780万円
茨木市西安威1丁目
150m2
 
 
 
 
相談
間取あり写真あり写真あり
☆閑静な住宅街の建築条件なし売り土地です ☆全3区画分譲 ☆南向きで陽当たり良好です ☆建築条件がございませんのでお好みのハウスメーカーで建築して頂けます ☆現況更地ですので解体費用不要です

周辺施設
安威小学校まで徒歩約10分 北中学校まで徒歩約4分 食品館ちゃお安威店まで徒歩約5分 耳原公園まで徒歩約8分 北大阪けいさつ病院まで徒歩約17分
入荷後10日以内
Bt15024
茨木市上野町9-10付近(2号地) 2,780万円
茨木市上野町
97.02m2
 
 
 
 
相談
間取あり写真あり写真あり
☆静かな住宅街の全7区画分譲です ☆期間限定の建築条件なし売り土地です(予告なしに建売住宅に変更される可能性がございます ☆現況更地ですので解体費用不要です

周辺施設
アルプラザまで徒歩約11分 ローソンまで徒歩約4分 耳原公園まで徒歩約8分 耳原小学校まで徒歩約7分 北中学校まで徒歩約14分
入荷後10日以内
Bt15025
茨木市上野町9-10付近(3号地) 2,880万円
茨木市上野町
89.2m2
 
 
 
 
相談
間取あり写真あり写真あり
☆静かな住宅街の全7区画分譲です ☆期間限定の建築条件なし売り土地です(予告なしに建売住宅に変更される可能性がございます ☆現況更地ですので解体費用不要です

周辺施設
アルプラザまで徒歩約11分 ローソンまで徒歩約4分 耳原公園まで徒歩約8分 耳原小学校まで徒歩約7分 北中学校まで徒歩約14分
入荷後10日以内
Bt15027
茨木市上野町9-10付近(5号地) 2,880万円
茨木市上野町
94.86m2
 
 
 
 
相談
間取あり写真あり写真あり
☆静かな住宅街の全7区画分譲です ☆期間限定の建築条件なし売り土地です(予告なしに建売住宅に変更される可能性がございます ☆現況更地ですので解体費用不要です

周辺施設
アルプラザまで徒歩約11分 ローソンまで徒歩約4分 耳原公園まで徒歩約8分 耳原小学校まで徒歩約7分 北中学校まで徒歩約14分
Bk13756
茨木市南安威3丁目11-40-2 2,900万円
茨木市南安威3丁目
80.31m2
81.46m2
2LDK
木造
H14/03
相談
間取あり写真あり写真あり
☆静かな住宅街の平成14年築の物件です ☆2023年10月に室内リフォーム歴あり ☆ロフトや勾配天井などこだわりの邸宅 ☆高台につき陽当り、眺望、通風良好です ☆南西角地物件

周辺施設
北中学校まで徒歩2分 安威小学校まで徒歩約9分 ニッコーまで徒歩約2分 耳原公園まで徒歩約3分 アルプラザまで徒歩約13分
入荷後10日以内
Bt15026
茨木市上野町9-10付近(4号地) 3,000万円
茨木市上野町
103.44m2
 
 
 
 
相談
間取あり写真あり写真あり
☆静かな住宅街の全7区画分譲です ☆期間限定の建築条件なし売り土地です(予告なしに建売住宅に変更される可能性がございます ☆現況更地ですので解体費用不要です

周辺施設
アルプラザまで徒歩約11分 ローソンまで徒歩約4分 耳原公園まで徒歩約8分 耳原小学校まで徒歩約7分 北中学校まで徒歩約14分
Bk14664
茨木市室山1丁目19-18(1号棟) 3,280万円
茨木市室山1丁目
119.35m2
95.58m2
3LDK
木造
R07/07
新築
相談
間取あり間取あり写真あり写真あり
☆閑静な住宅街の限定2区画分譲新築一戸建てです ☆耐震強度3(最上級)の地震に強い家 ☆安心の住宅性能評価取得物件です ☆外構工事費・建築確認費用・水道市納金などすべて物件価格に含まれておりますので諸費用がお得!

周辺施設
サークルKサンクスまで徒歩約5分 けいさつ病院まで徒歩約6分 福井小学校まで徒歩約10分 アルプラザまで徒歩約17分