中古マンション 中古マンション 中古マンション 中古マンション
1,350万円 2,180万円 2,280万円 2,478万円
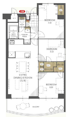
東奈良・天王・沢良宜方面 構造:RC専有面積:60.48平米 ( 18.29坪 )  東奈良・天王・沢良宜方面 構造:鉄筋コンクリート造専有面積:70.79平米 ( 21.41坪 )  東奈良・天王・沢良宜方面 構造:鉄筋コンクリート造専有面積:70.79平米 ( 21.41坪 )  東奈良・天王・沢良宜方面 構造:鉄筋コンクリート造専有面積:66.66平米 ( 20.16坪 ) 
中古マンション 中古マンション    
2,680万円 2,790万円    
東奈良・天王・沢良宜方面 構造:鉄骨鉄筋コンクリート造専有面積:66.66平米 ( 20.16坪 )  東奈良・天王・沢良宜方面 構造:鉄骨鉄筋コンクリート造専有面積:70.94平米 ( 21.45坪 )